For Sale: Newly Built Apartments in a Peaceful Neighbourhood Close to Luštica Bay

Tivat

Radovići, Tivat

77

2 bedrooms

1-2 bathrooms

By request
from
164000
per month
First and last month payment + 1 refundable deposit
Utilities paid separately

For Sale: Newly Built Apartments in a Peaceful Neighbourhood Close to Luštica Bay

📍 Location: Radovići, Tivat

Located in a quiet area within walking distance to Luštica Bay Centrale, the newly built modern school, supermarket, restaurants, and the beautiful Plavi Horizonti beach. Just a 10-minute drive to some of the most stunning beaches on the Luštica peninsula.

Distances:

• Tivat Airport – 10 km

• Kotor – 12 km

• Tivat center – 13 km

• Budva – 26 km

The building is situated on an elevated position above the center of Radovići. It is an excellent investment opportunity, providing great value compared to the more expensive properties in the nearby area.

🛏 Available Apartments:

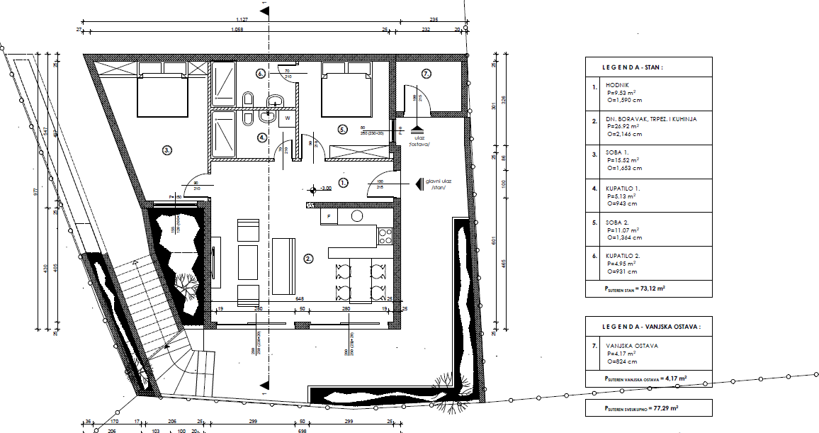
Ground floor:

• Two-bedroom apartment – 77.29 m² (€164,000)

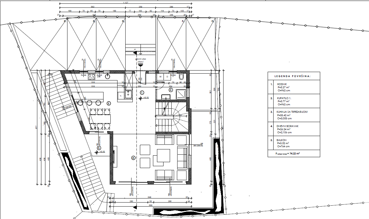
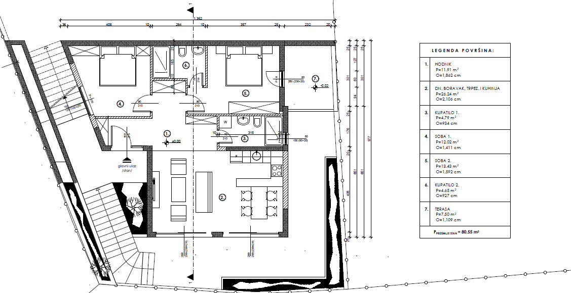
First floor:

• Two-bedroom apartment with 2 bathrooms – 80.55 m² (€212,000)

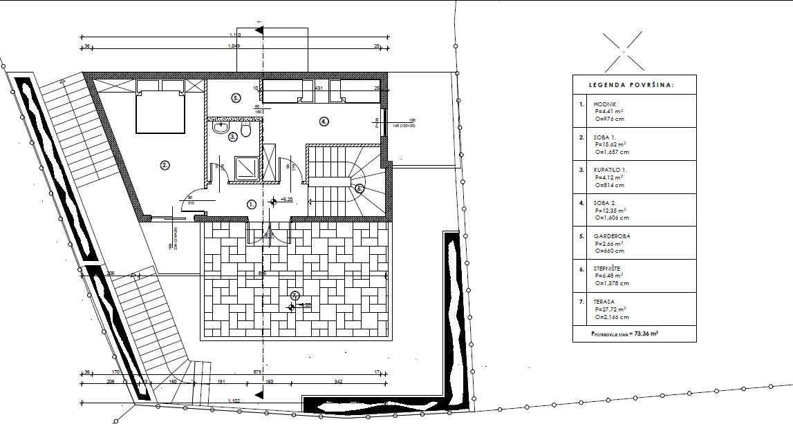
Second floor & attic:

• Duplex two-bedroom apartment with a large sea-view terrace and two bathrooms – 147.58 m² (€373,000)

It is possible to purchase the entire building and create a three-storey villa or take over the investment for €630,000.

Each apartment has a separate entrance and a free parking space in front of the building. A total of 5 parking spaces are available.

📩 Contact us for more information or to schedule a viewing.

Inside

kitchen
living room
2 bedrooms
1-2 bathrooms

Conveniences

AC
parking space

Gallery

FAQ

Our services are free for tenants.

The most common payment scheme in Montenegro is payment upon arrival of the first, last month and an insurance refundable deposit of one more month. For example, if you want to rent an apartment for 1000 euros, you will most likely need 3000 euros.

Some owners are reluctant to sign a notarial contract due to personal beliefs, additional taxes and lack of necessary documents. In our work, we always ask if they need a notarial contract and if so, we already negotiate with each owner individually.

A notarized real estate lease agreement for a year is a mandatory document required to apply for a residence permit (Boravak). In addition, this document has significantly more weight than a notarized contract.

There are four options: - You pay them to the owner in cash together with the rent; - You pay utilities to the owner by bank transfer; - You pay for utilities at a bank branch; - Utilities are included in the price.

We highly do not recommend arranging a pet and keeping it in an apartment without the owner's knowledge. If your pet does not make loud noises, does not smell and does not spoil the property, then many owners will agree to move you in. As a rule, you will need to make an additional deposit for a pet when you move in.

As a rule, in this case, you will not be refunded the deposit or the deposit + the last month of rent. The conditions of a premature congress are prescribed in the contract and may differ from the above.

FAQ

This service is completely free. Our agency services are paid only for the completed transaction and only by the owner.

No, a residence permit is not required to purchase real estate in Montenegro. Any foreigner can purchase real estate in Montenegro without restrictions, there are also no restrictions on the number of real estate objects that a foreigner can own.

Yes, sometimes the buyer has to pay a property transfer tax of 3%, a value added tax of 21% and a notary fee. Depending on the object, the taxation procedure may differ, for example, sometimes the owner is ready to pay all the taxes of the buyer.

There are several stages: a comprehensive inspection of the object, signing a preliminary contract, making a deposit, concluding a purchase and sale agreement and registering the object in the land cadastre. For a better understanding of specific procedures, we recommend consulting with us or with a local lawyer.

There are a lot of payment variations in Montenegro and the payment method depends on the specific object and is set by searching for the most convenient option for the buyer and the owner.

In EstateLands, before each purchase/sale transaction, a comprehensive check of all real estate documents is carried out. We analyse the documents from the cadastral statement, check them and consult with a lawyer.

Ilya Karpov

+382 68 470 753
Rus, Eng

Bogdan Međedović

+382 68 016 982
Mne, Eng

Not all properties are listed on the site.

Contact us with your request and we will find at least 3 suitable properties for you. For free.

Contact Us